Trumpington Meadows Phases 10 & 11
Project details
- Client: Cambridge City Council
- LPA: South Cambridgeshire District Council
- 01 July 2016
- Cambridge
People involved
Specialisms
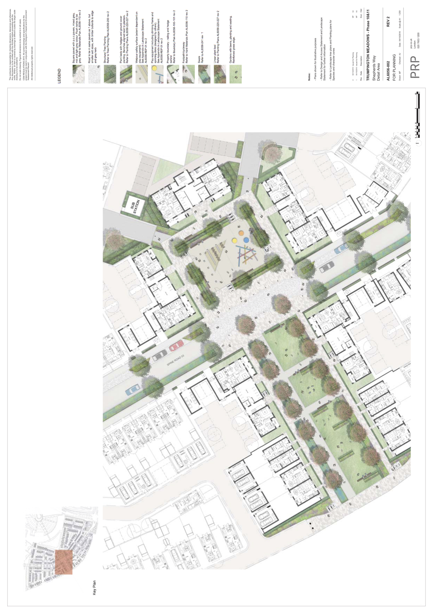
Place Services was commissioned by Cambridge City Council to provide development management Urban Design advice as part of a Planning Performance Agreement (PPA) with Barratt Homes Eastern Counties to deliver the Local Centre phase of Trumpington Meadows. The Reserved Matters application included 392 new dwellings (including 40% affordable housing) with associated internal roads, car and cycle parking, and landscaping.
The PPA included the provision of urban design advice at each stage of the development management process, ensuring that the emerging proposals meet the requirements of the adopted design codes as well as the aspirations of the Local Planning Authority. Our Urban Designers represented the Local Authority on all design matters, including guiding the emerging layouts through Cambridgeshire’s Quality Panel.
In delivering this Service Level Agreement, a dedicated Urban Designer co-located with Cambridge City Council to provide an additional resource as an extension to the clients planning and design teams. The Reserved Matters application was approved by planning committee in mid-December 2020.